
Votre maison manque de place, mais vous n’envisagez pas de déménager ? Un plan d’extension 2 chambres est souvent la solution la plus intelligente pour gagner en surface tout en valorisant votre bien. Que vous souhaitiez créer une suite parentale, accueillir vos enfants qui grandissent ou loger un proche, l’agrandissement de votre maison offre une réponse sur mesure, à condition de bien préparer votre projet.
Pourquoi opter pour un agrandissement 2 chambres ?
La décision d’agrandir sa maison ne se prend pas à la légère. Avant de vous lancer, il est utile de comprendre pourquoi ce type de projet séduit de plus en plus de familles à travers la France.
Premièrement, l’espace de vie s’élargit sans les contraintes d’un déménagement. Vous restez dans un environnement connu, proche de vos commodités, dans votre quartier ou votre jardin.
Deuxièmement, une extension bien conçue améliore le confort quotidien de toute la famille. Deux chambres supplémentaires, c’est aussi, bien souvent, une salle de bains ou une salle d’eau en plus, des rangements optimisés et un intérieur mieux organisé.
Enfin, un agrandissement de qualité représente une vraie plus-value immobilière. Les maisons dotées de pièces supplémentaires se vendent mieux et plus vite, un argument de poids si vous envisagez une revente à terme.
Extension de plain-pied ou à l’étage : quel plan choisir ?
Le choix entre une extension de plain-pied et une extension à l’étage est souvent dicté par la configuration de votre terrain et la surface disponible.
L’extension de plain-pied
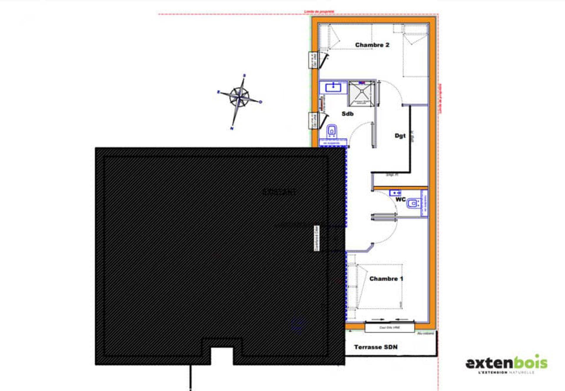
Si votre terrain le permet, une extension de plain-pied est la solution la plus accessible, notamment pour les personnes à mobilité réduite. Elle s’intègre naturellement dans le prolongement de votre maison, côté jardin ou sur une face latérale. Ce type d’agrandissement est idéal pour créer une chambre parentale avec salle de bains attenante, ou pour ajouter deux chambres enfants avec une salle d’eau commune.
L’extension à l’étage
Quand le terrain est limité ou déjà bien occupé, l’extension de maison à l’étage s’impose comme une alternative pertinente. Elle conserve l’emprise au sol de la maison tout en maximisant la surface habitable. Deux chambres à l’étage, c’est souvent synonyme d’une belle vue sur le jardin, d’une bonne isolation phonique avec le reste de la maison et d’une configuration de vie plus indépendante pour les enfants ou les invités.
Les modèles d’extension 2 chambres les plus populaires
Il existe plusieurs modèles d’extension adaptés à des besoins et des styles architecturaux différents. Voici une sélection des configurations les plus demandées auprès de nos équipes :
Le modèle « suite parentale + chambre enfant » : une grande chambre avec salle de bains privative côté parent et une chambre plus compacte pour un enfant ou un adolescent.
Le modèle « 2 chambres symétriques » : deux pièces identiques de taille équivalente, séparées par un couloir et une salle de bains centrale. Idéal pour les familles avec plusieurs enfants.
Le modèle « logement indépendant » : deux chambres avec accès autonome, salle de bains, coin kitchenette. Parfait pour accueillir des parents âgés ou générer un revenu locatif.
Le modèle avec garage intégré : l’extension englobe également un garage accolé, optimisant l’ensemble de l’espace disponible sur la parcelle.
Chaque plan est entièrement réalisé sur mesure pour s’adapter à la morphologie de votre maison existante, aux contraintes du PLU local et à vos préférences de style. Nos équipes conception vous accompagnent de la première esquisse jusqu’au dépôt du permis de construire.
L’ossature bois : le matériau incontournable de l’extension moderne
Chez Extenbois, toutes nos extensions sont réalisées en ossature bois. Ce type de construction présente de nombreux avantages, tant techniques qu’esthétiques, qui en font aujourd’hui le matériau de référence pour les projets d’agrandissement.
La construction en bois est rapide : le chargement structurel est préfabriqué en atelier, ce qui réduit considérablement les délais de chantier et les nuisances pour les occupants. Le bois est également un excellent isolant thermique et phonique, qui contribue à améliorer le confort de l’ensemble de la maison.
Sur le plan esthétique, l’ossature bois permet de concevoir des extensions de style contemporain ou moderne, avec de grandes ouvertures, des lignes épurées et des finitions soignées. Le toit peut être plat ou en pente, recouvert de tuiles, de zinc ou d’autres matériaux selon les règles du PLU et l’harmonie recherchée avec la maison existante.
Enfin, le bois est un matériau écologique et durable, qui s’inscrit pleinement dans une démarche de construction responsable. Nombreux sont les projets en France qui intègrent désormais des extensions de maison en bois dans une approche « smart home » ou à haute performance énergétique.
Salle de bains, pièces de vie : bien penser l’agencement intérieur
Un plan d’extension 2 chambres ne se limite pas aux chambres elles-mêmes. L’organisation des pièces et des flux de circulation est déterminante pour la qualité de vie dans l’espace créé.
Pour une extension avec suite parentale, la salle de bains privative est généralement accolée directement à la chambre principale. Elle peut comprendre une douche à l’italienne, une baignoire ou les deux, selon la surface disponible. Pour les deux autres occupants, une salle de bains partagée ou une salle d’eau avec WC indépendant est souvent suffisante.
L’intérieur de l’extension doit aussi permettre un accès fluide depuis la maison existante. Une porte de communication bien positionnée, un couloir lumineux ou un palier intermédiaire font toute la différence dans le confort perçu au quotidien.
Surface, terrain et réglementation : ce qu’il faut anticiper
Avant de lancer votre projet, quelques points réglementaires et techniques méritent d’être vérifiés en amont.
La surface de l’extension conditionne directement le type d’autorisation nécessaire. Une extension 2 chambres de 20 m² peut ainsi nécessiter qu’une déclaration préalable de travaux dans la plupart des communes, sans permis de construire. Au-delà, un permis de construire est obligatoire. Si la surface totale de la maison dépasse 150 m² après agrandissement, le recours à un architecte est imposé par la loi.
Le terrain joue également un rôle central : emprise au sol disponible, recul par rapport aux limites de propriété, règles du Plan Local d’Urbanisme (PLU)… Votre constructeur doit vérifier ces points dès les premières études. À titre d’exemple, une agence comme la nôtre réalise systématiquement une étude de faisabilité avant tout engagement.
La mesure précise de votre maison actuelle et de votre terrain est indispensable pour concevoir des plans cohérents et conformes. Un relevé topographique ou un diagnostic préalable peuvent être nécessaires dans certains cas.
Quel prix pour une extension 2 chambres en ossature bois ?
Le prix d’une extension 2 chambres varie selon plusieurs facteurs : la surface totale créée, le type d’extension (plain-pied ou étage), les matériaux choisis, les finitions et la complexité du raccordement avec l’existant.
Le prix pour une extension en ossature bois de qualité avec une prestation complète clé en main varie selon la complexité du projet. Ce qui est compris dans le prix : la conception, le dépôt administratif, la construction et les finitions intérieures. Les maisons bénéficiant d’un accès difficile ou d’un terrain en pente peuvent engendrer des surcoûts liés aux contraintes de chantier.
Pourquoi confier votre projet à Extenbois ?
Extenbois est une agence spécialisée dans la construction d’extensions de maison en bois, rattachée au Groupe Trecobat, l’un des leaders de la construction de maisons individuelles en France. Cette appartenance à un groupe solide nous permet de vous garantir des équipes expérimentées, des processus de construction éprouvés et un accompagnement de bout en bout.
Nos modèles d’extensions couvrent tous les types de projets : du simple agrandissement de plain pied ou à étage à la véritable maison de famille avec espaces de vie réorganisés. Nos plans sont entièrement personnalisables, que vous visiez un style contemporain, traditionnel ou petite maison à haute performance énergétique.
Chaque extension est travaillée sur mesure avec votre chef de projet dédié. Pas de solutions génériques : chaque plan est pensé pour votre maison, votre terrain et votre mode de vie.
FAQ — Plan extension 2 chambres
Tout dépend de la surface créée. En deçà de 20 m², une déclaration préalable suffit dans la plupart des communes. Au-delà, un permis de construire est requis. Votre constructeur vérifie les règles du PLU local et constitue le dossier administratif à votre place.
Le coût d’une extension 2 chambres dépend de la surface, du type (plain-pied ou étage), des finitions choisies et de la complexité du chantier.
Grâce à la préfabrication en atelier propre à l’ossature bois, le gros œuvre peut être réalisé en quelques semaines. En comptant les études, le dépôt administratif et les finitions intérieures, le projet complet dure généralement entre 6 et 12 mois.
Oui, c’est l’une des configurations les plus demandées. Une chambre parentale avec salle de bains privative, intégrée dans une extension bois, est tout à fait réalisable. Nos équipes conçoivent un plan sur mesure adapté à votre maison et à vos souhaits d’agencement intérieur.
Absolument. L’ossature bois est un matériau flexible qui s’adapte à tous les styles architecturaux. Que votre maison soit traditionnelle avec des tuiles ou contemporaine à toit plat, notre agence conçoit une extension en harmonie visuelle et structurelle avec l’existant.
Pour aller plus loin
TVA extension de maison
Vous avez décidé d'agrandir votre maison et vous vous demandez quelle TVA va s'appliquer à votre projet ? C'est...
Fondation extension maison
Agrandir sa maison est un projet qui se prépare avec méthode. Avant de penser à la charpente, à l'isolation...
