Plan extension de suite parentale légèrement surélevée
Nous vous présentons un projet d’extension particulièrement réfléchi : une suite parentale conçue pour offrir confort, intimité et autonomie. Ce projet, encore au stade des plans et des rendus 3D, illustre parfaitement notre approche sur mesure des extensions de maison. Ce projet a été conçu par l’agence Extenbois, extension de maison à Lamballe.
Un projet architectural cohérent
Ce projet d’extension s’intègre très bien avec une maison néobretonne existante. Le choix d’une architecture cubique légèrement en quinconce par rapport au bâti principal crée un jeu de volumes moderne tout en respectant l’esprit de la construction d’origine.
La toiture plate en légère pente assure une évacuation optimale des eaux pluviales tout en affirmant le caractère contemporain de cette extension. Légèrement surélevée, elle s’adapte parfaitement à la configuration du terrain et à l’architecture existante.
Une construction en ossature bois
Fidèles à notre savoir-faire, nous avons opté pour une construction en ossature bois, technique éprouvée qui offre de nombreux avantages :
- Rapidité de mise en œuvre
- Excellente performance thermique
- Construction sèche et propre
- Durabilité et qualité environnementale
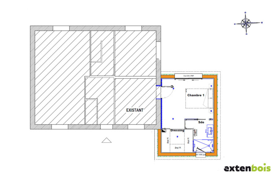
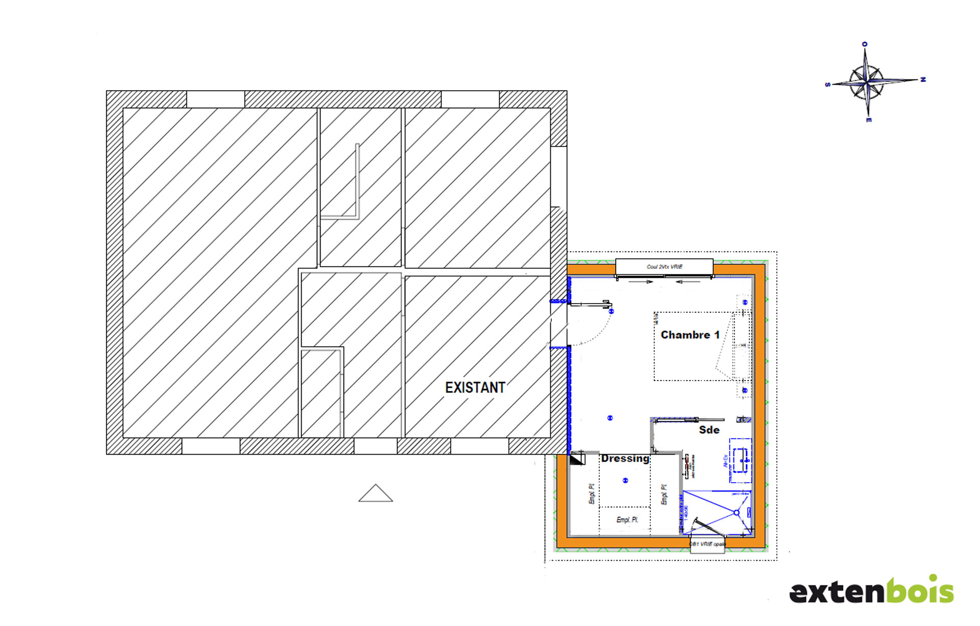
Une suite parentale complète de plain-pied
Cette extension inférieure à 20 m² en RDC comprend tous les espaces nécessaires à une suite parentale fonctionnelle :
- Une chambre lumineuse
- Une salle de bain pratique
- Un dressing pour optimiser les rangements
L’objectif ? Permettre le maintien à domicile le plus longtemps possible. L’aménagement de plain-pied supprime les obstacles liés aux escaliers et garantit une accessibilité totale, anticipant ainsi les besoins futurs des propriétaires.
Des menuiseries pensées pour le bien-être
Les ouvertures ont été soigneusement étudiées :
- Une baie vitrée à deux vantaux dans la chambre pour profiter de la lumière naturelle et créer une ouverture généreuse sur l’extérieur
- Une fenêtre oscillo-battante dans la salle de bain, solution idéale pour aérer efficacement et réduire l’humidité
Les menuiseries en aluminium blanc assurent une parfaite homogénéité avec les fenêtres existantes de la maison, préservant ainsi la cohérence esthétique de l’ensemble.
Des revêtements adaptés à chaque espace
Le choix des sols a été pensé en fonction de l’usage de chaque pièce :
- Stratifié dans la chambre et le dressing : chaleureux, facile d’entretien et confortable
- Carrelage dans la salle de bain : résistant à l’humidité et hygiénique
Un projet sur mesure qui vous inspire ?
Ce projet illustre notre capacité à concevoir des extensions parfaitement adaptées aux besoins spécifiques de nos clients. Que vous souhaitiez créer une suite parentale, agrandir votre espace de vie ou anticiper vos besoins futurs, Extenbois vous accompagne de la conception à la réalisation.
Vous avez un projet d’extension en tête ? Contactez-nous pour en discuter et transformer vos idées en réalité !
Avis clients
Note calculée à partir de 387 avis
4.6/5
L'intégralité des avis clients d'Extenbois est gérée par Guest Suite certifié 'NF Service Avis en ligne, processus de collecte, modération et restitution des avis' par AFNOR Certification.
Olivier/Elisa MARTINEAU/FROMOUT
Pertinence du conseil, impression de grande maîtrise du sujet, avec des échanges francs et humains. En comparant avec des concurrents, j'ai la nette impression qu'aucun sujet n'a été ignoré. Cela m'incite à la confiance.