Extension de salon en RDC et chambre à l’étage
Dans l’optique d’agrandir leur espace de vie et d’offrir une chambre supplémentaire à la maison existante, ces propriétaires d’Ille-et-Vilaine ont fait appel à l’agence Extenbois, extension maison Rennes afin de réaliser une extension contemporaine, s’intégrant parfaitement à l’existant.
Une aile supplémentaire
L’extension a été réalisée en bardage faux claire-voie lasuré gris minéral. L’avancée encadrant la structure est quant à elle habillée de panneaux de zinc soulignant la modernité de la construction. L’aile, une fois intégrée à la maison existante, a été cerclée d’une terrasse en bois permettant de bénéficier d’un espace extérieur.
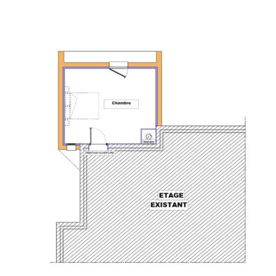
Un salon et une chambre
Au rez-de-chaussée, la surface supplémentaire abrite un tout nouveau salon, libérant de la place dans la pièce à vivre. À l’étage une ouverture a été réalisée dans la toiture afin d’accéder à une chambre.
Un projet d’extension ? Contactez nos équipes.
Avis clients
Note calculée à partir de 399 avis
4.6/5
L'intégralité des avis clients d'Extenbois est gérée par Guest Suite certifié 'NF Service Avis en ligne, processus de collecte, modération et restitution des avis' par AFNOR Certification.
PUREN
Échanges de qualité et à l'écoute de notre projet

