Plan extension suite parentale moderne avec surélévation
Ce projet d’extension de maison moderne élaboré par Extenbois, spécialiste de l’extension de maison à Quimper, montre comment optimiser l’espace habitable d’une résidence existante. Cet avant-projet combine intelligemment une surélévation et une extension de suite parentale en RDC, créant ainsi un espace de vie confortable et fonctionnel.
Extension en rez-de-chaussée : un espace intime et raffiné
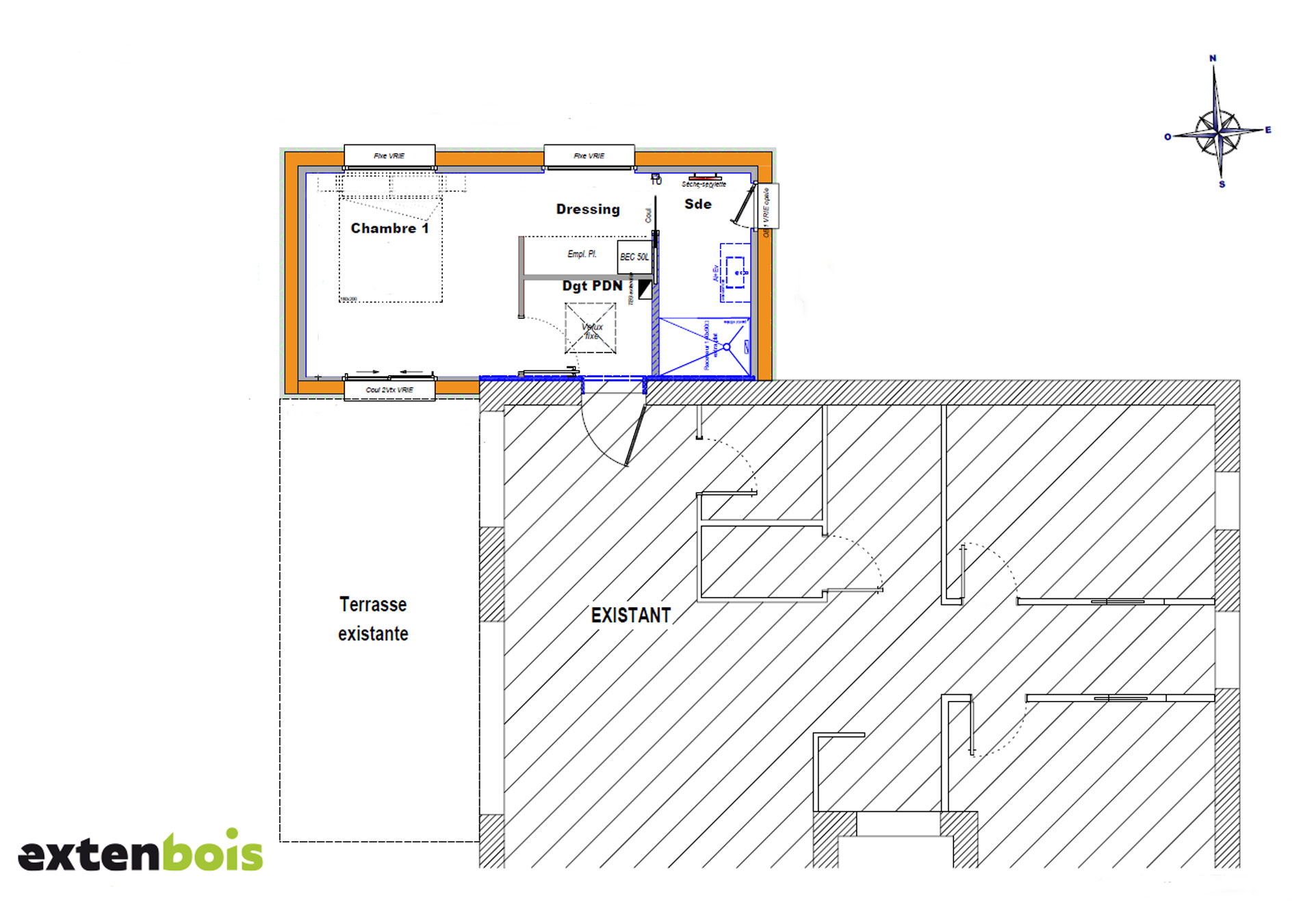
L’extension de suite parentale en RDC, tout en étant surélevée, constitue le cœur de ce projet architectural. Cette extension horizontale intègre trois espaces essentiels : une chambre spacieuse, une salle de bain contemporaine et un dressing pratique. L’ensemble forme une véritable suite parentale indépendante, offrant confort et intimité aux propriétaires.
La luminosité naturelle occupe une place centrale dans cette conception. Le projet prévoit l’installation de 2 fenêtres fixes pour un éclairage optimal, complétées par un coulissant 2 ventaux donnant sur la terrasse existante. Cette ouverture généreuse établit une connexion fluide entre l’intérieur et l’extérieur, parfaite pour profiter des beaux jours bretons.
Dans la salle de bain, une fenêtre française 1 ventail assurera à la fois ventilation et apport lumineux, créant un espace sain et agréable.
Des matériaux durables et esthétiques
L’esthétique de cette extension de maison moderne repose sur un choix judicieux de matériaux. Un bardage bois épicéa viendra recouvrir l’ossature de la maison, offrant une finition naturelle, chaleureuse et durable. L’épicéa, essence locale et résistante, s’intègre parfaitement dans le paysage breton tout en assurant une excellente protection contre les intempéries.
Les finitions sont soignées avec une sous-face en aluminium, matériau robuste et sans entretien, et des menuiseries en aluminium pour toutes les ouvertures. Ce choix garantit performance thermique, longévité et design contemporain.
Les revêtements de sol ont été pensés selon l’usage de chaque pièce. Un stratifié est prévu dans la chambre, le dressing et le couloir, offrant confort, facilité d’entretien et esthétique soignée. Dans la salle de bain, du carrelage résistant à l’humidité assurera durabilité et praticité.
Equipements techniques intégrés
Pour garantir l’autonomie de cette suite parentale, le projet inclut l’ajout d’un ballon d’eau chaude sanitaire de 50L, dimensionné pour couvrir les besoins quotidiens d’eau chaude.
Extenbois : votre partenaire pour l’extension à Quimper
Spécialiste reconnu de l’extension de maison à Quimper, Extenbois accompagne les propriétaires dans la conception et la réalisation de leurs projets d’agrandissement. Cette expertise locale garantit une parfaite connaissance des contraintes architecturales régionales et des normes d’urbanisme finistériennes.
Cet avant-projet démontre comment une extension de suite parentale combinée à une surélévation peut transformer radicalement le confort d’une habitation, en créant un espace privé moderne, lumineux et parfaitement intégré à l’existant.
Avis clients
Note calculée à partir de 376 avis
4.6/5
L'intégralité des avis clients d'Extenbois est gérée par Guest Suite certifié 'NF Service Avis en ligne, processus de collecte, modération et restitution des avis' par AFNOR Certification.
Mme Levenez a su redorer l’image de Extenblis après une fin de chantier plus que difficile il y’a 10 ans. Elle a fait le nécessaire pour solutionner notre infiltration d’eau et en faisant cette fois intervenir des professionnels compétents.