Extension de salle à manger sur-mesure
Les propriétaires d’une maison traditionnelle ont fait appel à Extenbois, extension maison Brest pour réaliser une extension de salon séjour. Après avoir consulté notre site internet et plus particulièrement nos réalisations, le couple de cinquantenaire a décidé de se lancer. Au départ, le projet consistait à ajouter un salon, puis après discussion avec l’un de nos conseillers, ils ont choisi de construire une extension pour accueillir une future salle à manger.
Une extension radieuse à Guilers
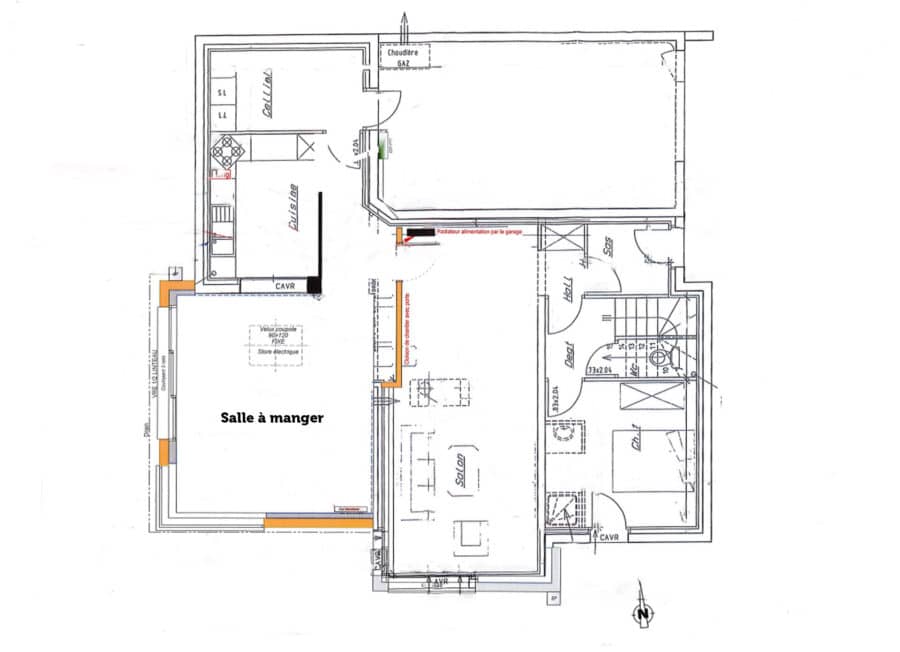
Grâce à l’extension, la configuration de la maison a complètement changé. En effet, l’extension a parfaitement su trouver sa place dans le creux du L que représentait la maison auparavant. Par ailleurs, l’esthétisme de la maison est lui aussi embelli !
Pour cette réalisation, l’ossature est entièrement recouverte d’un bardage bois naturel Clairvoie. Pour changer de l’ordinaire, les propriétaires ont choisi un sens de pose vertical, ce qui crée un aspect plus contemporain.
A propos des menuiseries, le choix s’est porté sur une fenêtre d’angle. Ce modèle permet de laisser pénétrer la lumière naturelle à tout moment de la journée. En complément de cette ouverture, une baie vitrée 3 ventaux a été ajoutée pour accéder directement à la terrasse. Il y a également un velux de toit qui permet de gagner en luminosité depuis le plafond.
Agrandir sa pièce de vie avec Extenbois
Avant l’extension, la cuisine et le salon-séjour étaient séparés. Or avec l’extension, deux ouvertures ont été réalisées. De ce fait, la salle à manger est ouverte sur le salon et la cuisine. En reliant ces espaces, les liens sont maintenus lorsque Jo et Véronique préparent le repas et que les invités discutent dans la salle à manger.
Aussi, pour créer un environnement plus chaleureux, les propriétaires ont choisi un revêtement imitation parquet. Et donc, pour harmoniser l’ensemble, le carrelage qui était présent dans la cuisine et dans le salon a été recouvert du même revêtement.
Profitant des travaux de l’extension, la cuisine a elle aussi bénéficié d’un coup de neuf. Sa petite taille n’est pas une contrainte tant elle est bien aménagée. L’ensemble des meubles sont encastrés dans le mur pour ne pas perdre de place.
Le style de la cuisine est un intemporel : bois brut, blanc laqué et noir mat. Enfin, pour séparer le couloir de la cuisine, une cloison a été ajouté accueillant une verrière. Elle permet aussi d’éviter les risques de projection de sauce ou tout autre aliment dans le couloir.
Que pensez-vous de cette extension ? Elle vous plait ? Pour mieux vous projeter, voici le plan de l’extension ci-dessous.
Si vous aussi vous avez un projet d’extension de maison de salle à manger, salon, cuisine ou encore de suite parentale, n’hésitez pas à nous contacter.
Avis clients
Note calculée à partir de 376 avis
4.6/5
L'intégralité des avis clients d'Extenbois est gérée par Guest Suite certifié 'NF Service Avis en ligne, processus de collecte, modération et restitution des avis' par AFNOR Certification.
Mme Levenez a su redorer l’image de Extenblis après une fin de chantier plus que difficile il y’a 10 ans. Elle a fait le nécessaire pour solutionner notre infiltration d’eau et en faisant cette fois intervenir des professionnels compétents.
