Extension suite parentale en bois : bardage vertical tremolo et évasion bleue

Dans cette charmante commune bretonne, nos équipes Extenbois ont imaginé une extension de suite parentale qui dialogue subtilement avec l’architecture traditionnelle locale. Cette réalisation signée Extenbois, extension de maison à Lannilis, incarne parfaitement notre vision : créer des espaces qui respectent l’identité régionale tout en embrassant la modernité.

Demande de devis

extension-suite-parentale-bois-extenbois
extension-cubique-extenbois-lannilis
bardage-extension-extenbois-lannilis
auvent-extension-extenbois-lannilis
extension-bois-bardage-baie-vitrée
baie-vitrée-chambre-parentale-extenbois
chambre-parentale-extension-extenbois-lannilis
tapisserie-tête-de-lit-extenbois
dressing-extension-extenbois-lannilis
salle-douche-extension-extenbois-lannilis
extension-suite-parentale-extenbois-lannilis

L’évasion bleue : une suite parentale inspirée de l’océan

Dès que l’on pénètre dans cette extension de maison, on est saisi par la poésie des lieux. Les nuances de bleu qui habillent la suite parentale ne sont pas un hasard : elles évoquent les tons changeants de la mer bretonne, créant une véritable invitation à l’évasion sans quitter le confort de son foyer.

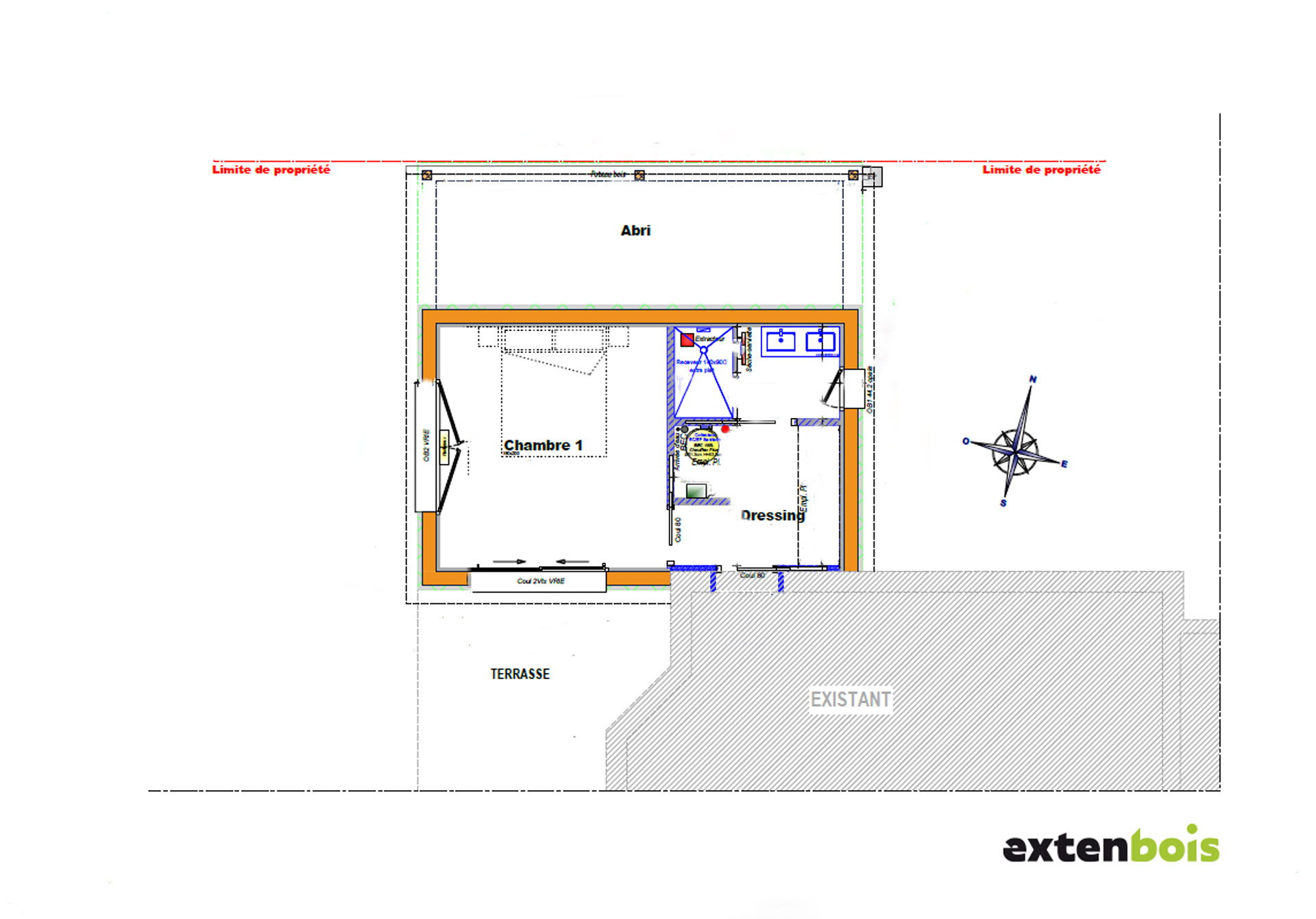
L’agencement de cette suite parentale révèle une réflexion approfondie sur l’art de vivre :

  • La chambre principale, baignée de ces bleus apaisants avec la tapisserie en tête de lit devient un refuge où le stress du quotidien s’évapore
  • Le dressing, astucieusement positionné entre la chambre et la salle de douche, crée une transition naturelle dans le rituel du lever et du coucher
  • La salle de douche complète ce parcours bien-être, pensée comme un écrin de détente

Quand l’intérieur épouse l’extérieur

La spectaculaire baie vitrée est plus qu’une simple ouverture, elle établit un dialogue constant entre l’intimité de la suite parentale et la beauté du paysage environnant.

Cette transparence calculée transforme le jardin en tableau vivant, visible depuis le lit. Concernant la salle de bain, une fenêtre opale a été choisie par souci d’intimité.

L’auvent est une zone d’ombre précieuse lors des journées ensoleillées. Un détail architectural qui révèle notre attention aux plaisirs simples de la vie en extérieur.

Le bardage vertical Tremolo pour une extension naturelle et élégante

Cette extension en bois bardé arbore fièrement notre bardage vertical tremolo, une technique qui transcende la simple couverture pour devenir un véritable élément sculptural. Ces lames verticales créent un rythme visuel captivant, jouant avec la lumière bretonne pour animer la façade au fil des heures.

Les rives en aluminium ne sont pas qu’un choix technique : elles apportent cette finition impeccable qui distingue une réalisation Extenbois. Ces éléments métalliques contrastent subtilement avec la chaleur du bois, créant une harmonie contemporaine parfaitement maîtrisée.

Extension de maison traditionnelle

Cette réalisation démontre notre expertise dans la réalisation d’extension de maison traditionnelle. Le toit plat aurait pu créer une rupture stylistique, mais notre approche l’intègre comme un élément de modernité assumée qui enrichit le dialogue architectural sans le dénaturer.

Le choix du bois pour cette extension révèle notre philosophie : respecter l’environnement breton tout en apportant cette chaleur naturelle qui caractérise nos réalisations.

Les atouts de cette extension

Cette suite parentale illustre parfaitement ce que peut apporter une extension pensée sur mesure :

  • Un gain d’espace fonctionnel qui transforme le quotidien
  • Une valorisation patrimoniale significative de l’habitation
  • Un confort de vie décuplé grâce à des espaces dédiés au bien-être
  • Une intégration paysagère respectueuse de l’identité locale

Une réalisation signée Extenbois, expert de l’extension de maison à Lannilis !

Chaque extension que nous concevons raconte une histoire unique. Celle-ci évoque l’art de vivre breton, la douceur des matins face à l’océan, la sérénité des soirées dans un cocon pensé pour le repos et la détente.

Cette réalisation prouve qu’une extension de maison peut transcender sa fonction première pour devenir un véritable art de vivre. Les nuances bleues de cette suite parentale continueront longtemps d’inspirer nos propriétaires vers de nouveaux horizons d’évasion.

DEMANDE DE DEVIS